Baugeschichte
Das historische Gebäude an der Schwertgasse 18 in 9000 St. Gallen blickt auf über 200 Jahre Baugeschichte zurück und ist fest in der Altstadt verwurzelt. Zwischen 2022 und 2025 wurde die Liegenschaft im Rahmen einer umfassenden Totalsanierung vollständig entkernt und hochwertig neu aufgebaut. Tragwerk, Gebäudehülle, Haustechnik und Innenausbau wurden sorgfältig erneuert und durch einen neuen Dachaufbau ergänzt.
Bei der Sanierung stand höchste Schweizer Bauqualität im Vordergrund: langlebige Materialien, präzises Handwerk und die Zusammenarbeit mit regionalen Unternehmern aus St. Gallen und Appenzell. Die historische Substanz wurde respektiert und gezielt in das moderne Konzept integriert.
So verbindet die Schwertgasse 18 heute traditionelle Baugeschichte, nachhaltige Sanierung und modernes Wohnen in der St. Galler Altstadt – ein vorbildhaftes Projekt für hochwertige Baukunst in der Ostschweiz.
Baugeschichte
Das historische Gebäude an der Schwertgasse 18 in 9000 St. Gallen blickt auf über 200 Jahre Baugeschichte zurück und ist fest in der Altstadt verwurzelt. Zwischen 2022 und 2025 wurde die Liegenschaft im Rahmen einer umfassenden Totalsanierung vollständig entkernt und hochwertig neu aufgebaut. Tragwerk, Gebäudehülle, Haustechnik und Innenausbau wurden sorgfältig erneuert und durch einen neuen Dachaufbau ergänzt.
Bei der Sanierung stand höchste Schweizer Bauqualität im Vordergrund: langlebige Materialien, präzises Handwerk und die Zusammenarbeit mit regionalen Unternehmern aus St. Gallen und Appenzell. Die historische Substanz wurde respektiert und gezielt in das moderne Konzept integriert.
So verbindet die Schwertgasse 18 heute traditionelle Baugeschichte, nachhaltige Sanierung und modernes Wohnen in der St. Galler Altstadt – ein vorbildhaftes Projekt für hochwertige Baukunst in der Ostschweiz.
Kernsanierung eines denkmalgeschützten Hauses in St. Gallen
Kernsanierung eines denkmalgeschützten Hauses in St. Gallen
Die Kernsanierung des denkmalgeschützten Hauses an der Schwertgasse 18 in der St. Galler Altstadt ist erfolgreich abgeschlossen. Was heute ruhig und geordnet erscheint, war hinter den Mauern ein komplexes Bauabenteuer, das Handwerk, Planung und Geduld erforderte.
Die Kernsanierung des denkmalgeschützten Hauses an der Schwertgasse 18 in der St. Galler Altstadt ist erfolgreich abgeschlossen. Was heute ruhig und geordnet erscheint, war hinter den Mauern ein komplexes Bauabenteuer, das Handwerk, Planung und Geduld erforderte.
Historischer Bestand und Bedeutung
Historischer Bestand und Bedeutung
Die Liegenschaft an der Schwertgasse 18 ist ein historisches Arbeiterhaus, errichtet in traditioneller Bauhandwerkskunst. Über 200 Jahre erzählt das Gebäude Geschichten von Alltag, Arbeit und Wandel.
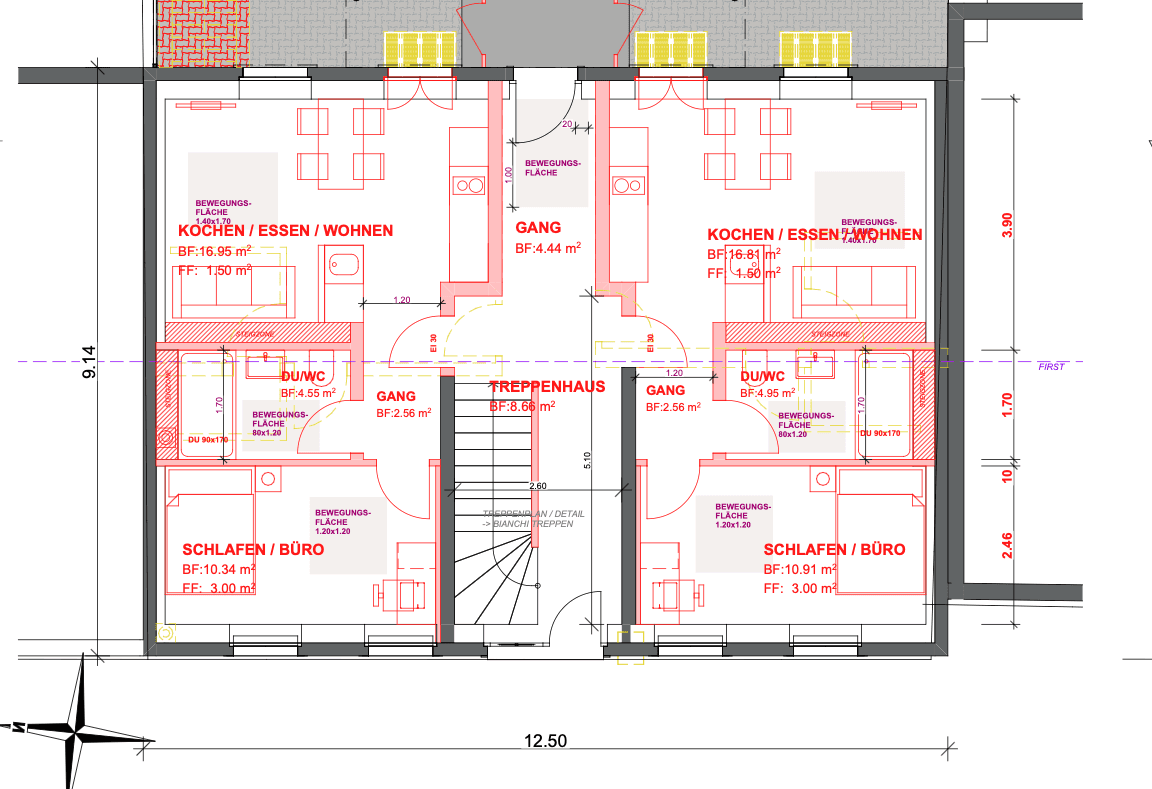
Historische Elemente wie Fassadendetails und Holzbalken wurden gesichert und, wo möglich, in die Sanierung integriert. Die neuen Grundrisse orientieren sich am ursprünglichen Entwurf, wodurch die historische Logik erhalten blieb und moderne Wohnanforderungen umgesetzt werden konnten.
Die Liegenschaft an der Schwertgasse 18 ist ein historisches Arbeiterhaus, errichtet in traditioneller Bauhandwerkskunst. Über 200 Jahre erzählt das Gebäude Geschichten von Alltag, Arbeit und Wandel.
Historische Elemente wie Fassadendetails und Holzbalken wurden gesichert und, wo möglich, in die Sanierung integriert. Die neuen Grundrisse orientieren sich am ursprünglichen Entwurf, wodurch die historische Logik erhalten blieb und moderne Wohnanforderungen umgesetzt werden konnten.
Arbeiten im Bestand
Arbeiten im Bestand
Im Inneren offenbarte sich der wahre Zustand erst beim Aufbrechen der Wände und Böden. Jeder Raum erzählte von alten Eingriffen, unentdeckten Schäden und überraschenden Strukturen.
Erhalten, wo tragfähige Substanz blieb
Ersetzen, wo Sicherheit und Funktion es verlangten
Neu bauen, wo keine Alternative bestand
Im Inneren offenbarte sich der wahre Zustand erst beim Aufbrechen der Wände und Böden. Jeder Raum erzählte von alten Eingriffen, unentdeckten Schäden und überraschenden Strukturen.
Erhalten, wo tragfähige Substanz blieb
Ersetzen, wo Sicherheit und Funktion es verlangten
Neu bauen, wo keine Alternative bestand
Arbeiten im Bestand
Im Inneren offenbarte sich der wahre Zustand erst beim Aufbrechen der Wände und Böden. Jeder Raum erzählte von alten Eingriffen, unentdeckten Schäden und überraschenden Strukturen.
Erhalten, wo tragfähige Substanz blieb
Ersetzen, wo Sicherheit und Funktion es verlangten
Neu bauen, wo keine Alternative bestand
Tragwerk, Gebäudehülle und Haustechnik
Tragwerk, Gebäudehülle und Haustechnik
Die Kernsanierung umfasste die Verstärkung des Tragwerks, die Erneuerung der Gebäudehülle, die Installation moderner Haustechnik (Heizung, Sanitär, Elektro und Lüftung) sowie einen hochwertigen Innenausbau und einen neuen Dachaufbau.
Die Kernsanierung umfasste die Verstärkung des Tragwerks, die Erneuerung der Gebäudehülle, die Installation moderner Haustechnik (Heizung, Sanitär, Elektro und Lüftung) sowie einen hochwertigen Innenausbau und einen neuen Dachaufbau.
Tragwerk, Gebäudehülle und Haustechnik
Die Kernsanierung umfasste die Verstärkung des Tragwerks, die Erneuerung der Gebäudehülle, die Installation moderner Haustechnik (Heizung, Sanitär, Elektro und Lüftung) sowie einen hochwertigen Innenausbau und einen neuen Dachaufbau.
Denkmalpflege
Die Denkmalpflege der Stadt St. Gallen begleitete das Projekt kontinuierlich. Entscheidungen wurden offen diskutiert, um Substanz und moderne Nutzung in Einklang zu bringen.
Denkmalpflege
Die Denkmalpflege der Stadt St. Gallen begleitete das Projekt kontinuierlich. Entscheidungen wurden offen diskutiert, um Substanz und moderne Nutzung in Einklang zu bringen.
Finanzierung & Dank an Partner
Unvorhergesehene Befunde und Anpassungen verlangten ständige Flexibilität und Liquiditätsplanung. Vertrauen der Finanzierungspartner war entscheidend für den erfolgreichen Abschluss.
Finanzierung & Dank an Partner
Unvorhergesehene Befunde und Anpassungen verlangten ständige Flexibilität und Liquiditätsplanung. Vertrauen der Finanzierungspartner war entscheidend für den erfolgreichen Abschluss.
Dank an Unternehmen und Bauhelfer:innen
Ohne Handwerkskunst, Erfahrung und Engagement wäre das Projekt nicht möglich gewesen. Dank gilt allen Beteiligten – Architekt:innen, Planer:innen, Handwerksbetrieben und Bauhelfer:innen.
Dank an Unternehmen und Bauhelfer:innen
Ohne Handwerkskunst, Erfahrung und Engagement wäre das Projekt nicht möglich gewesen. Dank gilt allen Beteiligten – Architekt:innen, Planer:innen, Handwerksbetrieben und Bauhelfer:innen.
Nachhaltigkeit, Bestand und Normalkonsum
Die Sanierung steht für bewussten Umgang mit Bestand und Ressourcen. Wo möglich wurde Substanz genutzt, wo nötig erneuert – stets mit Blick auf Langlebigkeit, Funktionalität und Ressourcenschonung. Heute ist das Haus klar strukturiert, funktional und langfristig nutzbar. Es zeigt, wie ehrliche, verantwortungsbewusste Sanierung gelingt, ohne die Geschichte zu verklären.
Nachhaltigkeit, Bestand und Normalkonsum
Die Sanierung steht für bewussten Umgang mit Bestand und Ressourcen. Wo möglich wurde Substanz genutzt, wo nötig erneuert – stets mit Blick auf Langlebigkeit, Funktionalität und Ressourcenschonung. Heute ist das Haus klar strukturiert, funktional und langfristig nutzbar. Es zeigt, wie ehrliche, verantwortungsbewusste Sanierung gelingt, ohne die Geschichte zu verklären.













